Toppmoderna och flexibla kontorslokaler


Toppmoderna och flexibla kontorslokaler med matsal, lounger, terrasser, mötesrum och ca 174 arbetsplatser utformade för att främja kreativitet, samarbeten, nätverkande och nya kontakter. I direkt anslutning till Högalidsparken och stadens puls, stora fönsterpartier från golv till tak, modern känsla och över tre meter i takhöjd.
Välj mellan restaurangen på taket med sittplatser både inomhus och ute på takterrassen, värmande kvällssol och härlig grönska eller restaurangen nere vid gatans puls med fönster från golv till tak. Köket är helt öppet och från baren kan man följa kockarnas hantverk.


Grönskande terrass med takbar och restaurang
Vi skapar en grönskande takterrass med sol från morgon till kväll, en härlig uteservering med bar, solbänkar, långbord och vacker utsikt - perfekt för avkoppling, utekontor, kundmöten och afterwork. Varför inte hålla ditt kundmöte under träden?
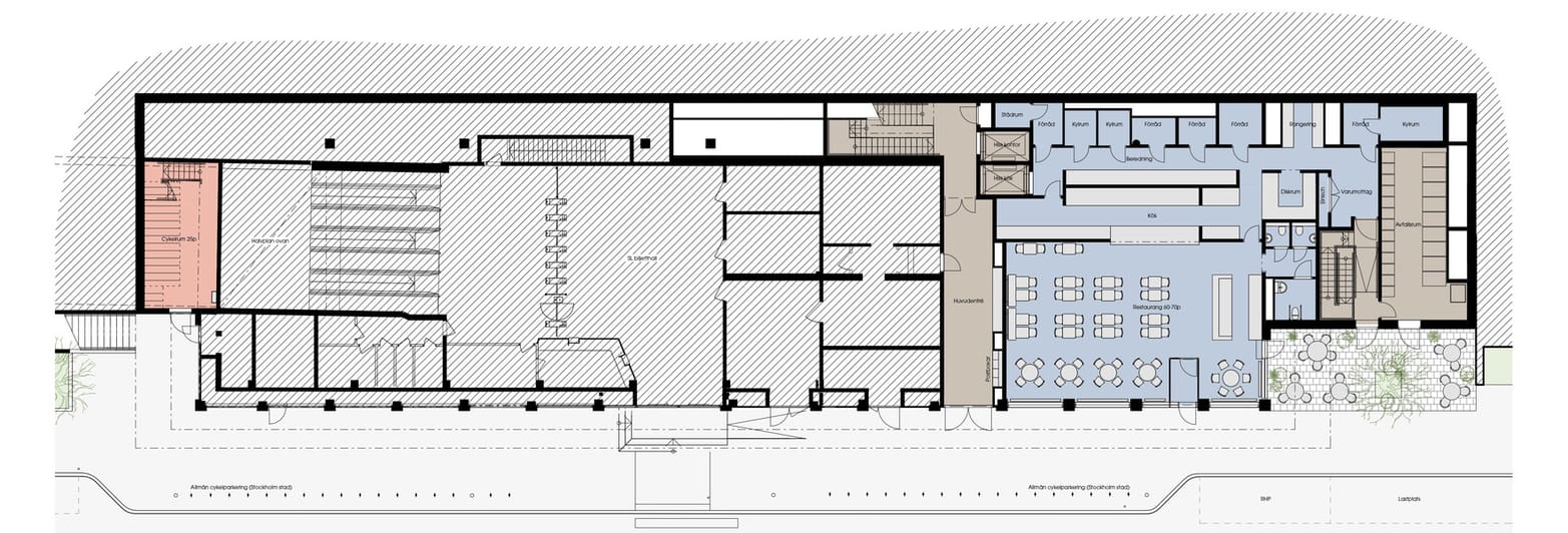
Planritningar
Entréplan
- Hornstulls tunnelbanestation
- Entré för kontoret och hiss upp till kontorsplanen eller takterrassen med bar/restaurang/mötesytor
- LOA ca 270 kvm restaurang med upp till ca 70 sittplatser
- Cykelrum- och förråd ca 87 kvm
- Avfallsrum ca 34 kvm
Entréplan
Kontorsplan, våning 1-2
- Två plan med kontorslokaler, matsal, lounger, gemensamma mötesrum och terrasser
- Ca 174 arbetsplatser
- LOA ca 1 062 - 2 206 kvm beroende på om kontorsplanen utformas som en eller två lokaler
Våning 1 - En hyresgäst per plan
Våning 2 - En hyresgäst per plan
Våning 1 - Hyresgäst på två plan
Våning 2 - Hyresgäst på två plan
Takplan, våning 3
- Takterrass för grön rekreation, arbetsmöten, event eller afterwork
- Restaurang med uteservering/bar i bästa sydvästläge och ca 90-100 sittplatser ute på takterrassen
- Delningsytor för restaurang, konferens, mötesplatser och lounge
- I direkt anslutning till vackra och gröna Högalidsparken
- LOA ca 303 kvm med upp till ca 100 sittplatser i konferens och restaurang
Våning 3 takterrass
Källare, våning -1
- Omklädningsrum, cykelrum och förråd till kontorslokalerna ca 92 kvm
- Omklädningsrum och kyl/frysrum för restaurangen ca 80 kvm
Källare våning -1
Vi anpassar lokalerna efter våra hyresgästers verksamhet och behov. Kontakta oss så diskuterar vi möjligheterna just här! Förändringar kan inträffa under projekteringen. Alla ytor är ungefärliga